STUDIO
ARCHITECTURE
projets
équipement
logement
urbanisme
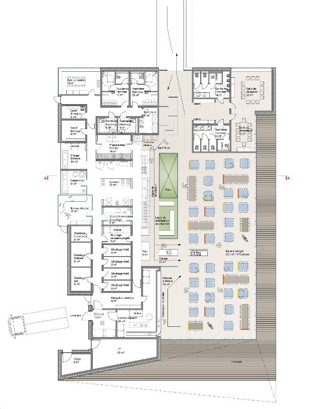
Restaurant d'entreprises
Construction d'un restaurant d'entreprises
lieu : Schiltigheim (67)
maitre d'ouvrage : Syndicat de la Chambre d'Agriculture d'Alsace
col. avec ARX Architecture
projets
agence
contact
© OP architecture