STUDIO
ARCHITECTURE
projets
équipement
logement
urbanisme
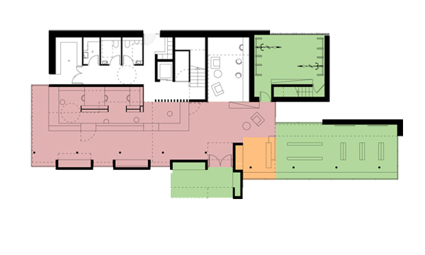
Construction d'une office de tourisme
et d'un espace Promotion du Territoire
lieu : Bitche (57)
surface : 420m²
cout : 760 000 €ht
maître d'ouvrage : Com Com du Pays de Bitche
concours classé 2nd
projets
agence
contact
© OP architecture